Description
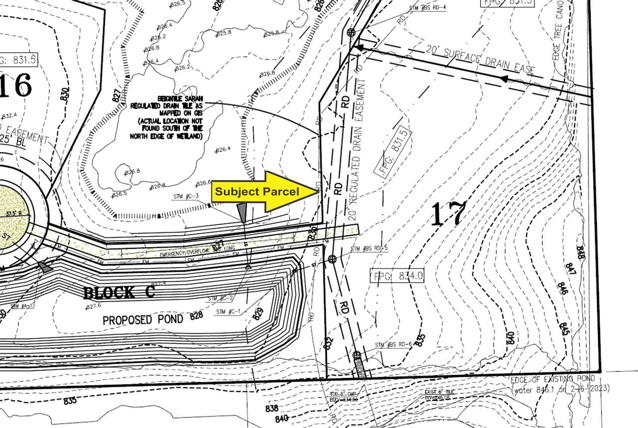
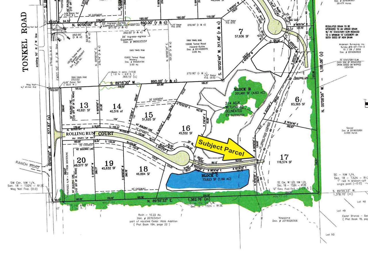
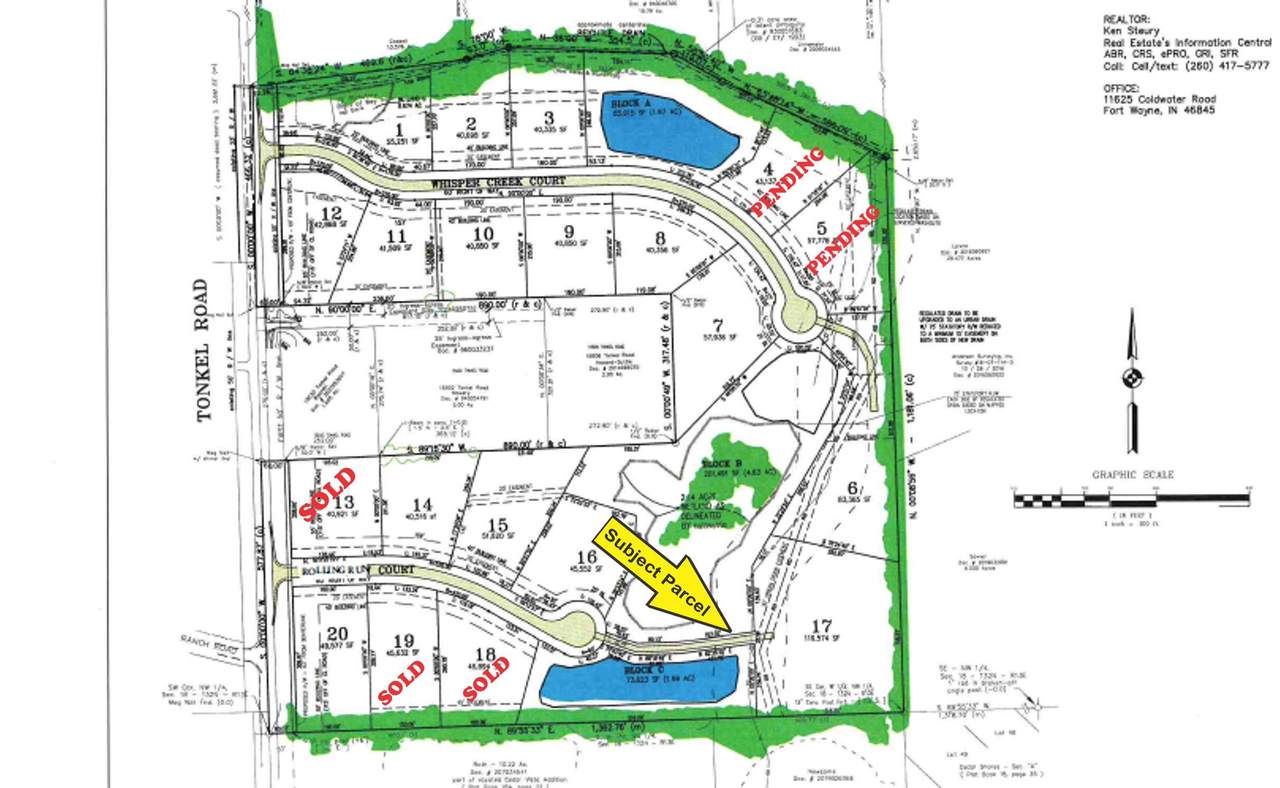
2.745 ACRES BUILDING LOT with UTILITIES, approved outbuildings allowed. WHISPER CREEK: Your Dream Home Awaits. Welcome to Whisper Creek, a micro community slated to be the epitome of luxury living nestled in a prime location that combines natural beauty, top-tier lot sizes, and an unrivaled niche in the community. This new residential development offers a unique blend of future home elegance and tranquility, making it the perfect place to call home. It is ideally situated in one of the most sought-after areas - Tonkel Roads north corridor; providing residents with easy access to the best that the region has to offer. We believe our luxury homes will be meticulously designed to blend seamlessly with the natural surroundings while offering the latest in modern conveniences and high-end finishes. Because we understand the importance of space and privacy, our generous lots are approximately one acre or larger in size, and provide you with ample room to create your own private oasis. For those who require additional space for hobbies, work, or storage, Whisper Creek offers the unique advantage of approved outbuildings. Whether you need a workshop or extra storage for RVs, boats, toys, etc., our flexible building guidelines allow you to create the perfect space to meet your needs. These outbuildings will be designed to compliment the architecture of your home and blend harmoniously with the community's aesthetic. The development is surrounded by lush tree-lines on its perimeter, offering a peaceful retreat from the hustle and bustle of city life, while still being close to major employers and highways. Allow us to assist and connect you with respected premier builders for your next beautiful home project offering your types of desirable amenities, too choosing the right floor plan, and finally choosing a builder in your budget. Embrace a lifestyle of elegance and tranquility at Whisper Creek - Your dream home awaits.
-
0BEDS
-
2.74ACRES
-
0BATHS
-
01/2 BATHS
School Information
Description
2.745 ACRES BUILDING LOT with UTILITIES, approved outbuildings allowed. WHISPER CREEK: Your Dream Home Awaits. Welcome to Whisper Creek, a micro community slated to be the epitome of luxury living nestled in a prime location that combines natural beauty, top-tier lot sizes, and an unrivaled niche in the community. This new residential development offers a unique blend of future home elegance and tranquility, making it the perfect place to call home. It is ideally situated in one of the most sought-after areas - Tonkel Roads north corridor; providing residents with easy access to the best that the region has to offer. We believe our luxury homes will be meticulously designed to blend seamlessly with the natural surroundings while offering the latest in modern conveniences and high-end finishes. Because we understand the importance of space and privacy, our generous lots are approximately one acre or larger in size, and provide you with ample room to create your own private oasis. For those who require additional space for hobbies, work, or storage, Whisper Creek offers the unique advantage of approved outbuildings. Whether you need a workshop or extra storage for RVs, boats, toys, etc., our flexible building guidelines allow you to create the perfect space to meet your needs. These outbuildings will be designed to compliment the architecture of your home and blend harmoniously with the community's aesthetic. The development is surrounded by lush tree-lines on its perimeter, offering a peaceful retreat from the hustle and bustle of city life, while still being close to major employers and highways. Allow us to assist and connect you with respected premier builders for your next beautiful home project offering your types of desirable amenities, too choosing the right floor plan, and finally choosing a builder in your budget. Embrace a lifestyle of elegance and tranquility at Whisper Creek - Your dream home awaits.
© 2025 Indiana Regional MLS All rights reserved. The data relating to real estate for sale or lease on this web site comes in part from IRMLS. IDX information is provided exclusively for consumers' personal, non-commercial use and may not be used for any purpose other than to identify prospective properties consumers may be interested in purchasing. Information is deemed reliable but is not guaranteed accurate by the MLS or Barnes Real Estate Services | North Eastern Group Realty. Data last updated: 2025-11-16T21:27:50.08.
